生駒市小平尾町C号地 建築条件付き土地 奈良県生駒市小平尾町 |1,480万円の土地|株式会社丸山不動産販売
| 価格 | 1,480万円値下がり ![]() |
||||
|---|---|---|---|---|---|
| 所在地 | 奈良県生駒市小平尾町
この地域周辺の物件を見る |
土地面積 | 148.66m² (44.96坪) | 坪単価 | 32.91万円 /坪 |
| 交通 |
近鉄生駒線 萩の台 徒歩8分
近鉄生駒線 南生駒 徒歩11分 |
建ぺい率 | 60 % | 容積率 | 200 % |
| 特徴 |
|
|---|---|
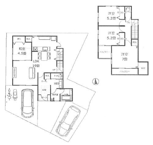
| セールスコメント | ◆近鉄萩の台駅より徒歩8分、近鉄南生駒駅より徒歩11分。2駅が徒歩圏内の立地で新居を構えませんか♪ ◆建築条件付き土地、残り1区画♪ ◆参考プラン例あり、自由設計の為間取りのご相談なども可能です♪ ◆モデルルームの案内も可能です♪ ◆前面道路は南西向き、高低差が無くフラットな建築が可能です♪ ◆徒歩10分圏内にスーパーやホームセンター等があります。小学校やクリニックモールも徒歩圏内で、住生活の拠点に便利な立地です♪ ◆現況更地の為、建物の予想図が立てやすいです。駐車スペースは複数台ご検討可能です♪(車種による) B号地:土地面積 122.68m2 C号地:土地面積 148.66m2 |
| 建築条件 | あり | 土地権利 | 所有権 |
|---|---|---|---|
| 現況/引渡し | 更地/即時 | 接道状況 | 接道: 南西 公道 道路幅: 4.2m |
| 私道負担面積 | - | セットバック | - |
| 地勢 | 地目 | 宅地 | |
| 用途地域 | 第一種住居地域 | 都市計画 | 市街化区域 |
| 法令上の制限 | 宅地造成工事規制区域/景観法/※本物件は土地売買契約後約3ヶ月以内に売主と住宅の請負契約を結ぶことを条件として販売いたします。この期間内に建築しないことが確定した時は土地売買契約は白紙解除となり、受領した金銭は全額返金します。 | 国土法届出 | - |
| 取引態様 | 一般媒介 | ||
| 情報更新日 | 2026年05月08日 | 次回更新日 | 2026年05月22日 |
| 小学校区 | 生駒市立生駒南第二小学校 (奈良県生駒市) この学区の他の物件を見る |
中学校区 | 生駒南中学校 (奈良県生駒市) この学区の他の物件を見る |
|---|
| 価格 | 万円 | ||
|---|---|---|---|
| 年利率 | % |
||
| ボーナス払い | 返済年数 | ||
| 頭金 | 直接入力する | 万円 | |

毎月のご返済額 |
ボーナス(×年2回) |
物件価格1,480万円 |
☆近鉄萩の台駅より徒歩8分、近鉄南生駒駅より徒歩11分♪
☆建築条件付き残り1区画♪
☆モデルルーム案内可能♪
☆前面道路との高低差無し♪
☆現況更地♪